atelier weinberger architektur ZT Gmbh
01_ibkbild.jpg
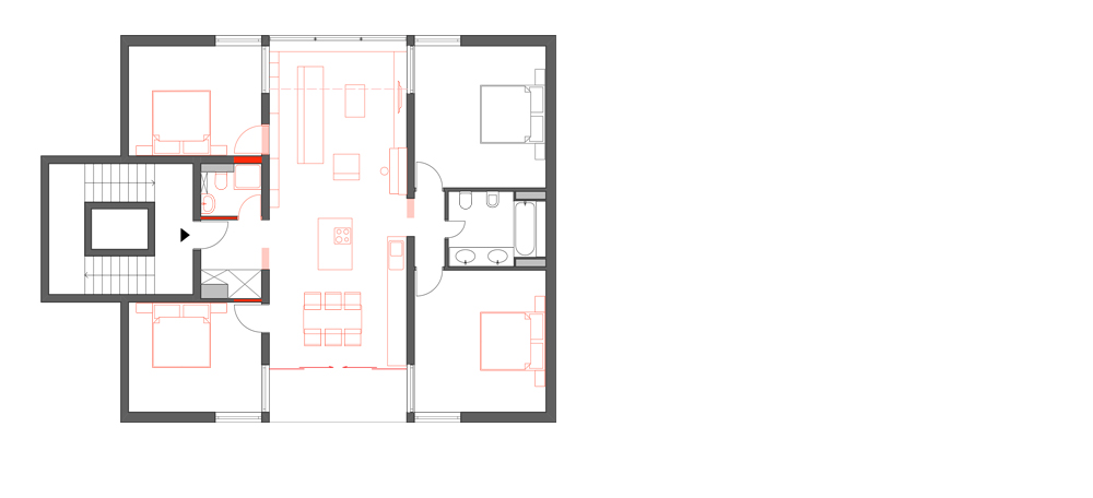
Die Wohnung befindet sich im 4. Stock eines Wohnhaus in der Andreas Hofer Straße im Zentrum von Innsbruck. Die Aufgabe bestand darin im Zuge einer Generalsanierung den Grundriss so umzugestalten, dass die 128m2 Wohnung sowohl als 4er-WG funktioniert, in Zukunft jedoch mit einfachen Mitteln in eine Familienwohnung umgewandelt werden kann. Status : realisiert Kunde : privat Lage : Innsbruck Datum : Mitte 2009 Foto : Philipp Weinberger
03_plan ibk.jpg
Die 135m2 Wohnung musste nach 37 Jahren das erste Mal saniert werden. Die Wohnung wird seit längerem von einer 5-köpfigen Familie bewohnt. Die Anforderungen der Bewohner hat sich verändert, die Kinder sind Jugendliche geworden und sollten Zuhause mehr Privatheit haben. Ziel war es eine Familienwohnung als Wohngemeinschaft zu organisieren. Status : realisiert Kunde : privat Lage : Telfs Datum : Mitte 2012
05_plan telfs.jpg